Wieniawskiego
Poznaj Twoje wymarzone osiedle
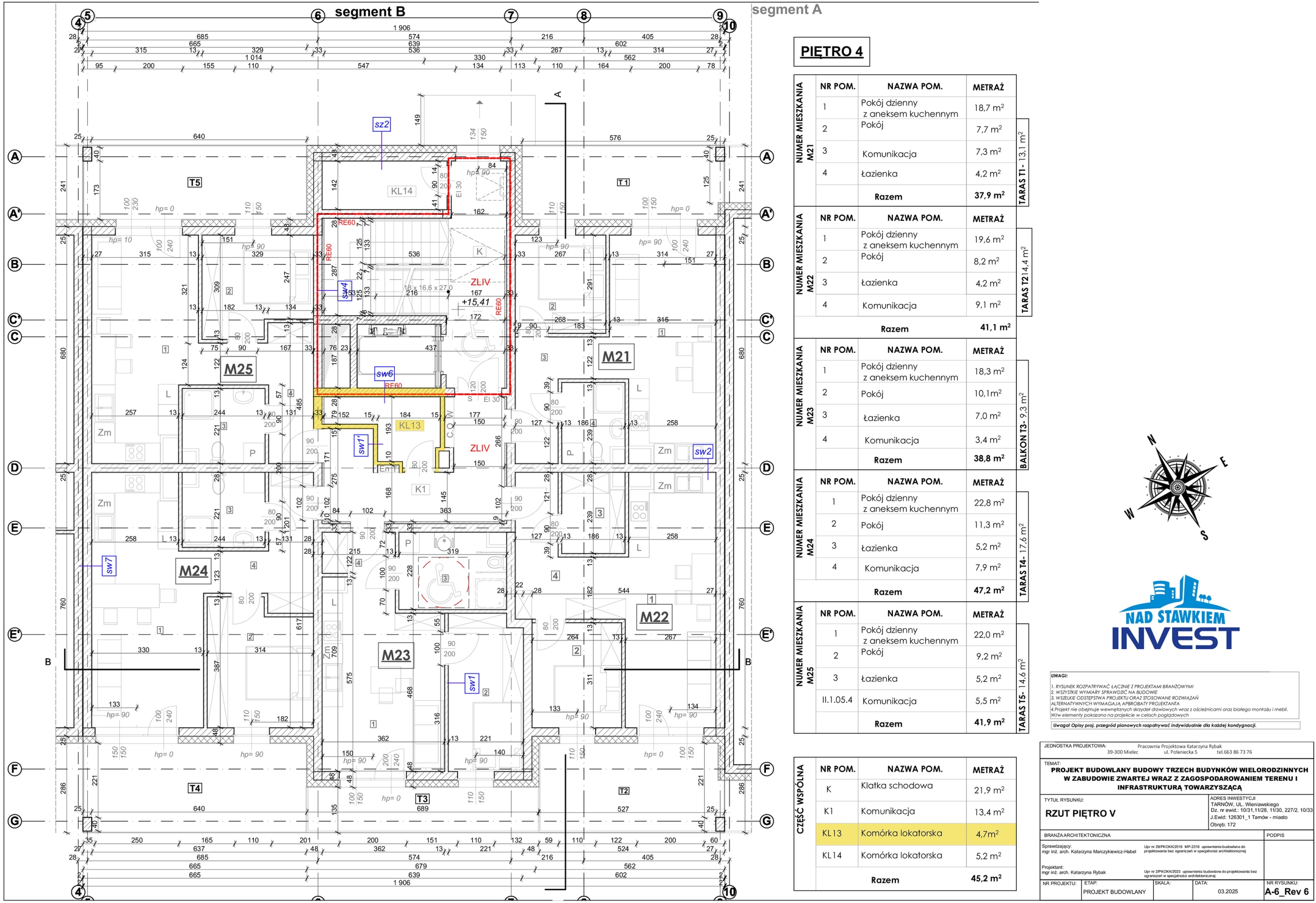
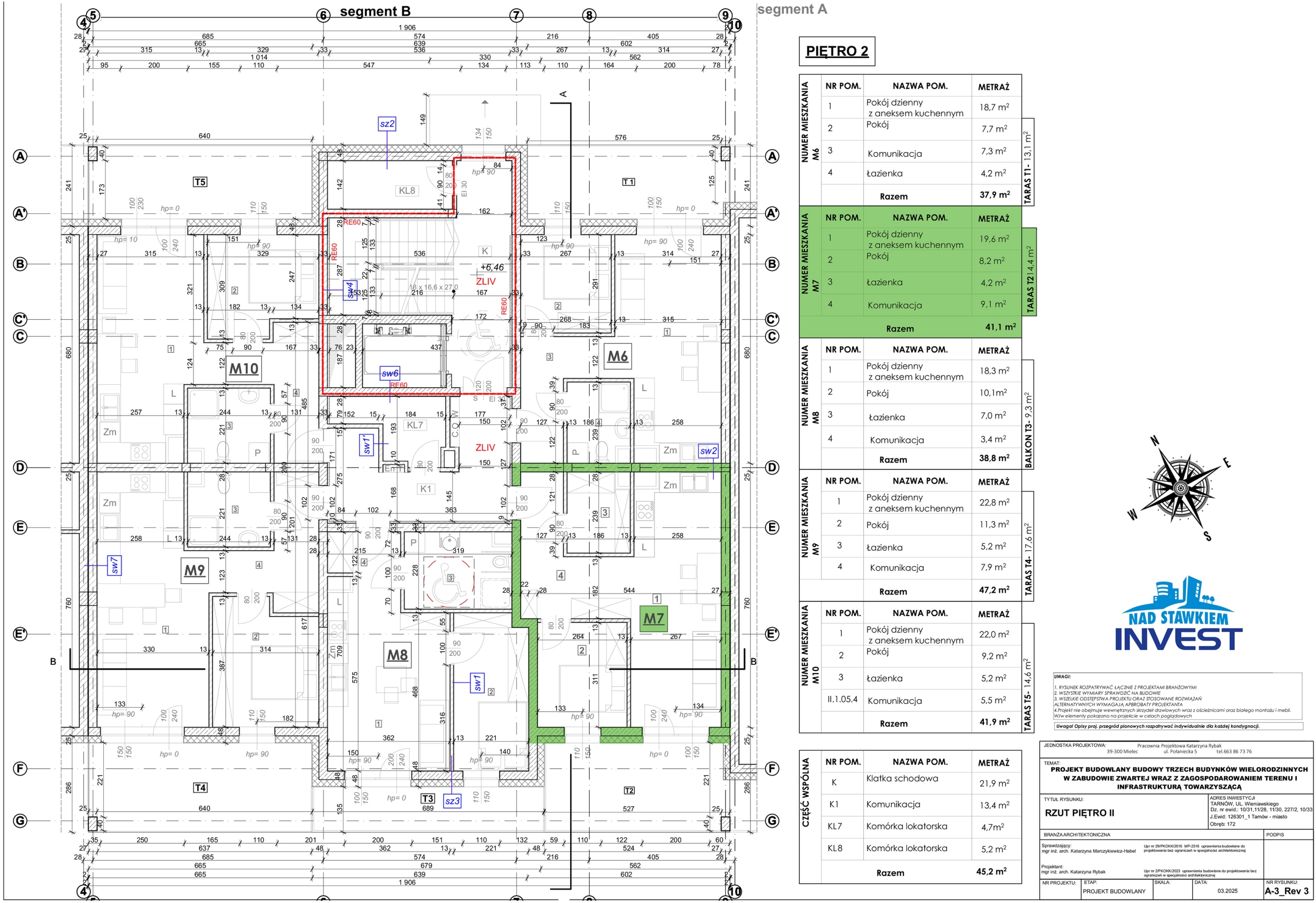
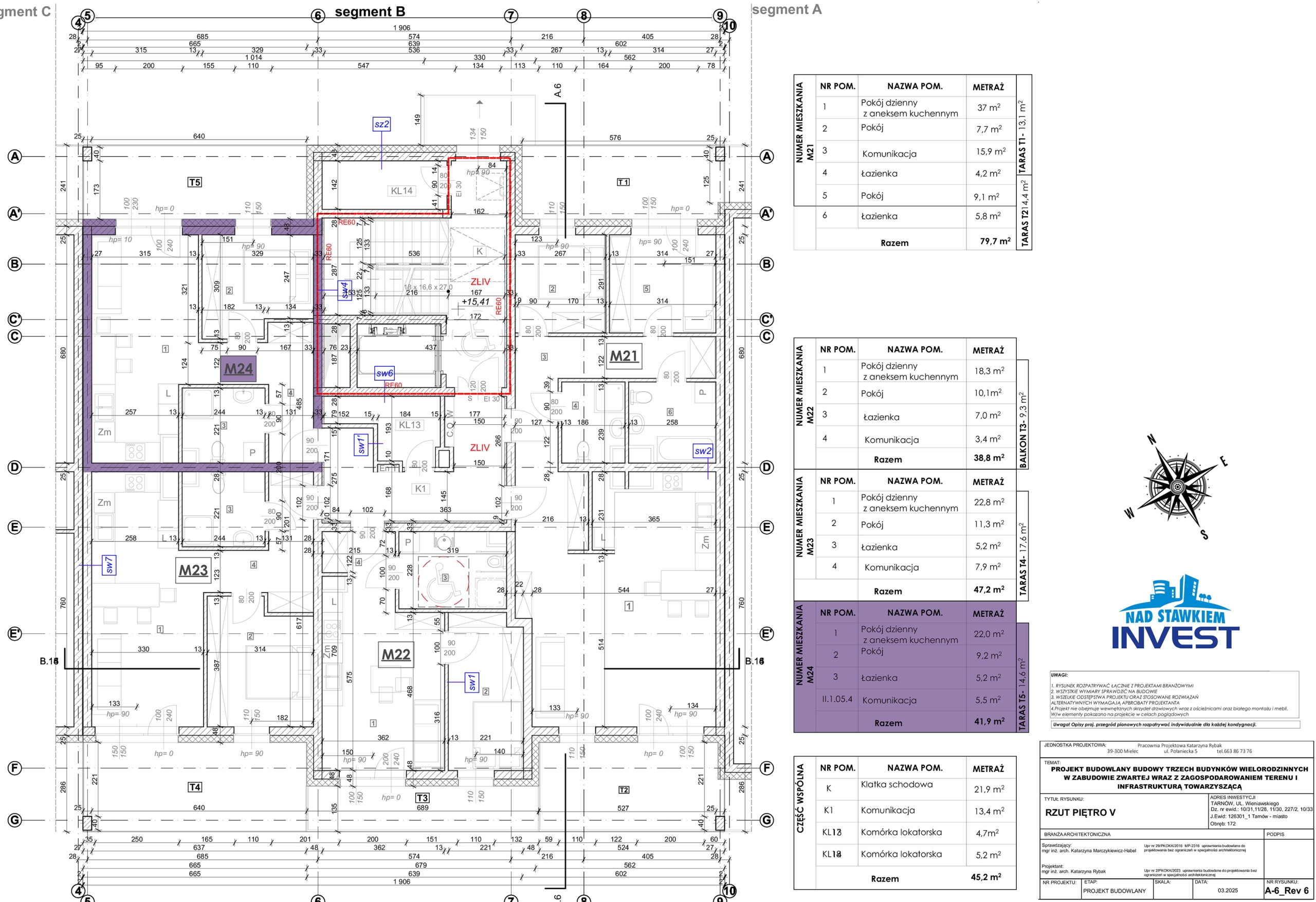
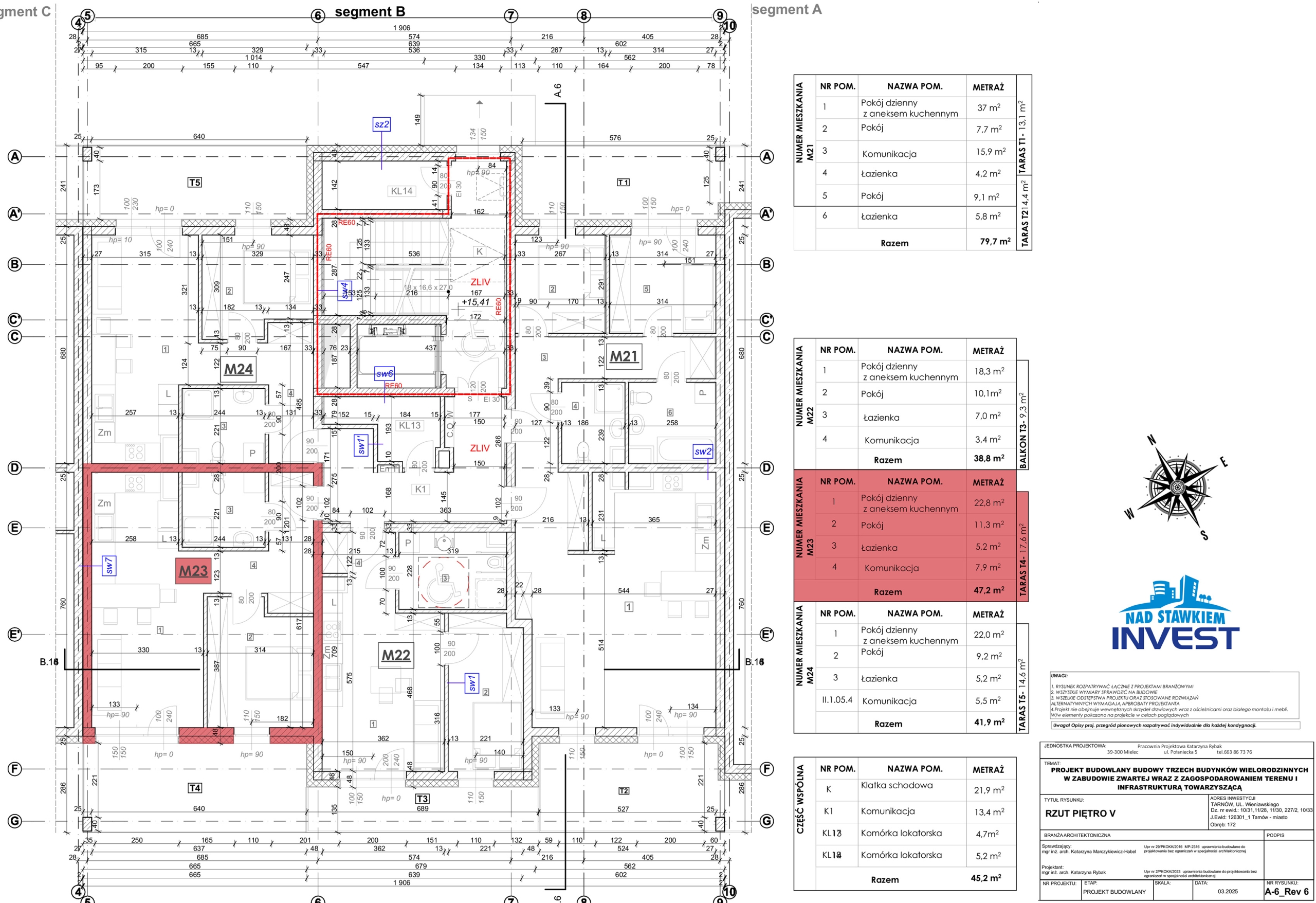
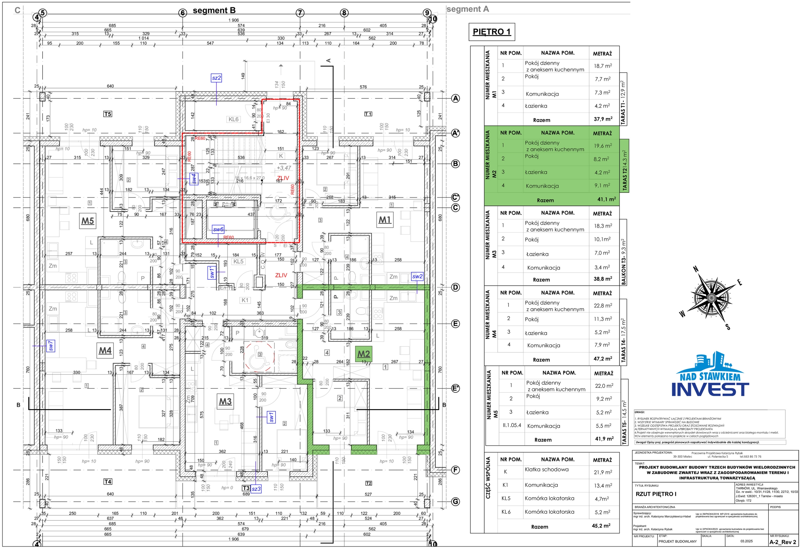
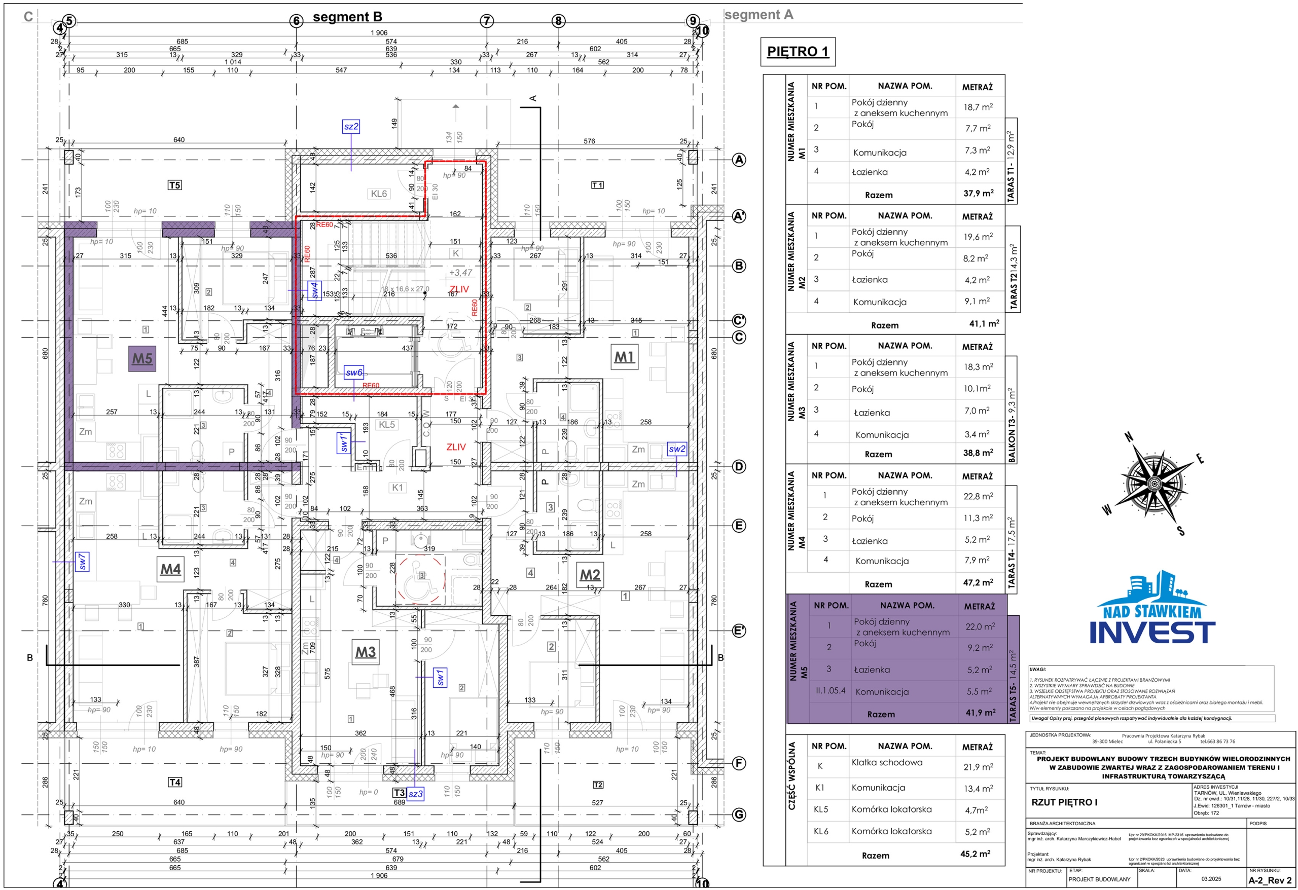
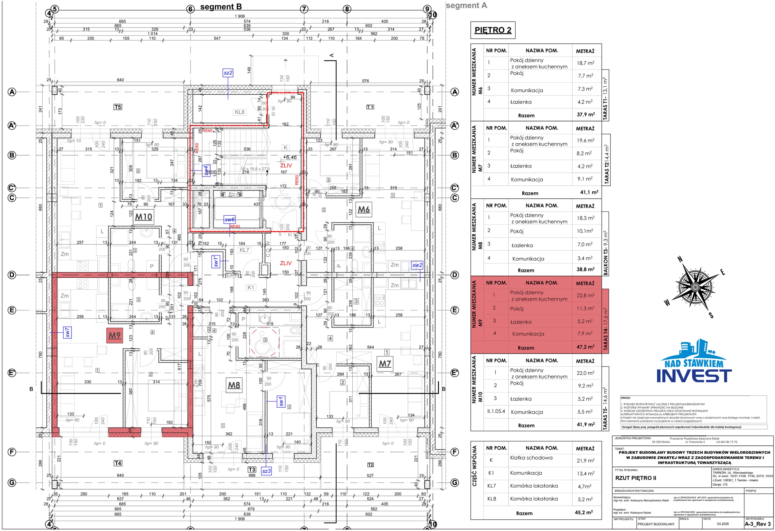
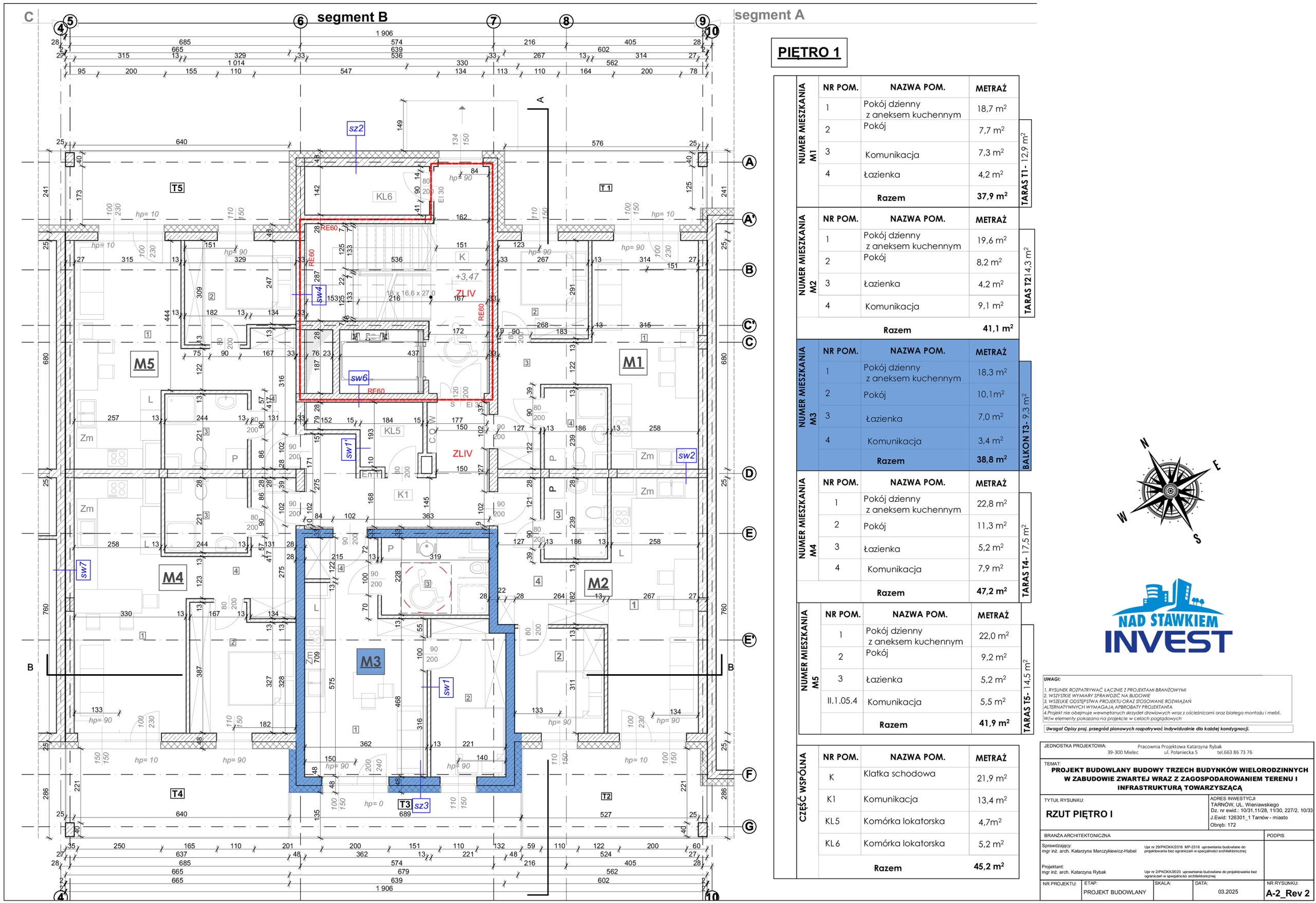
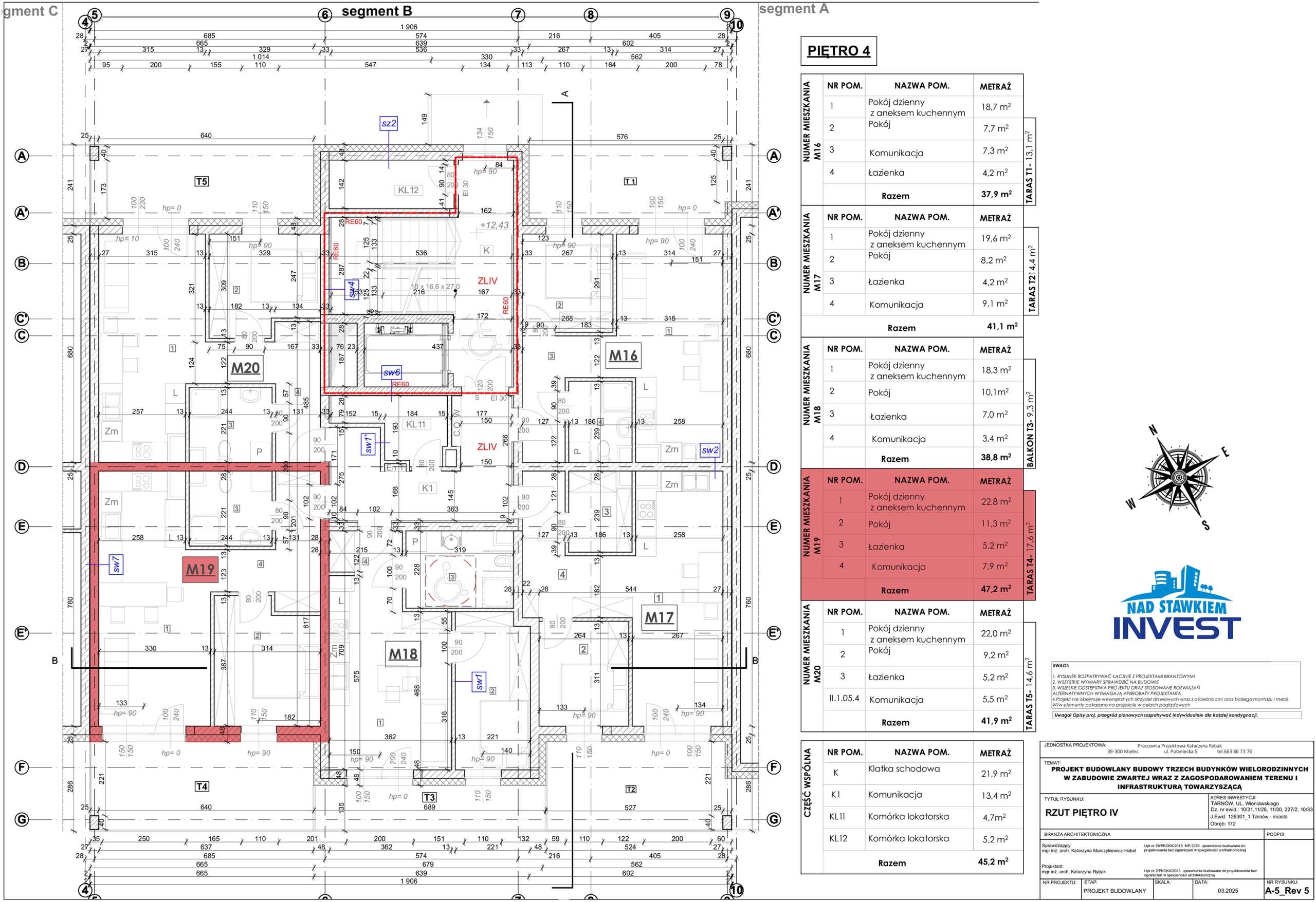
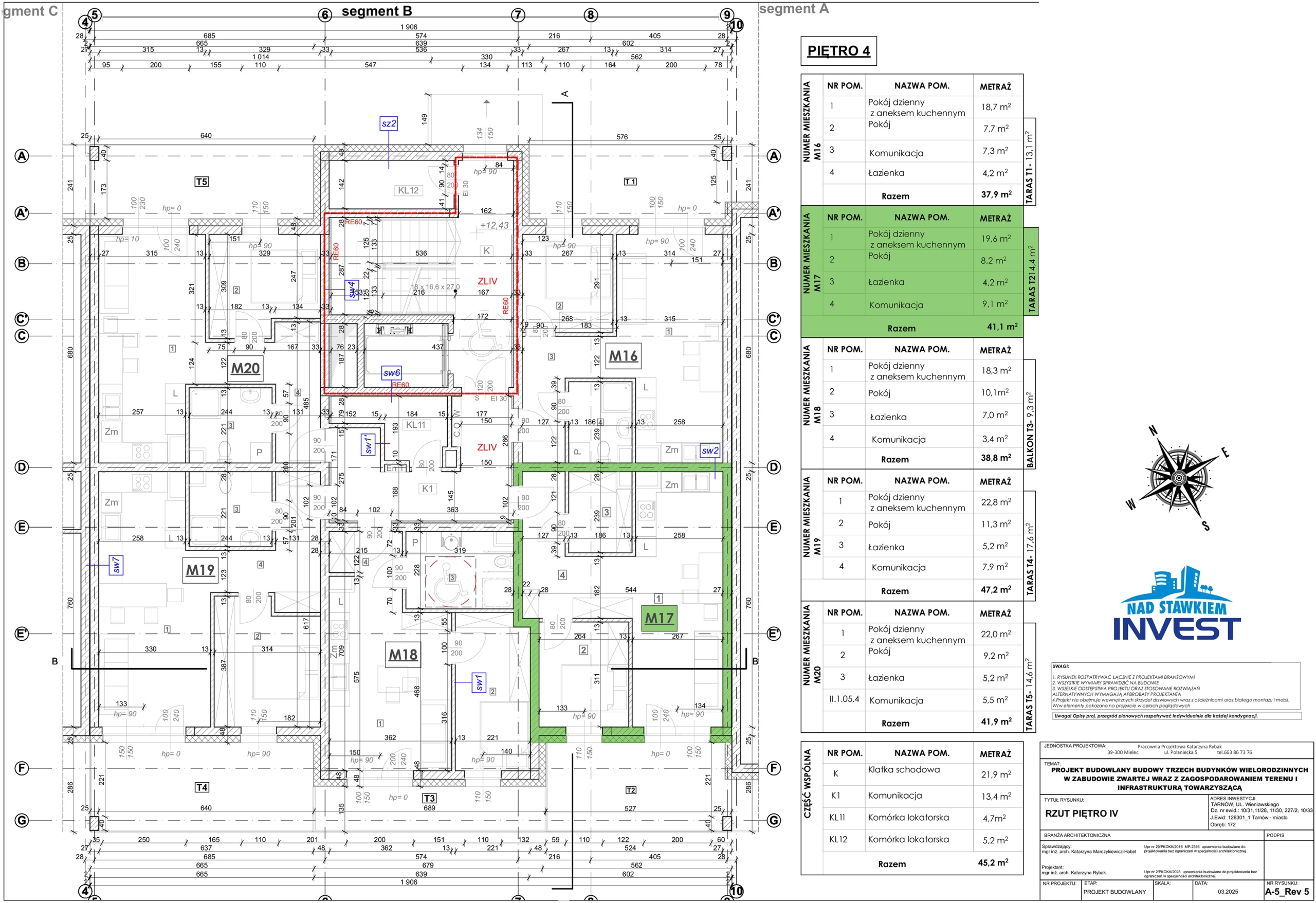
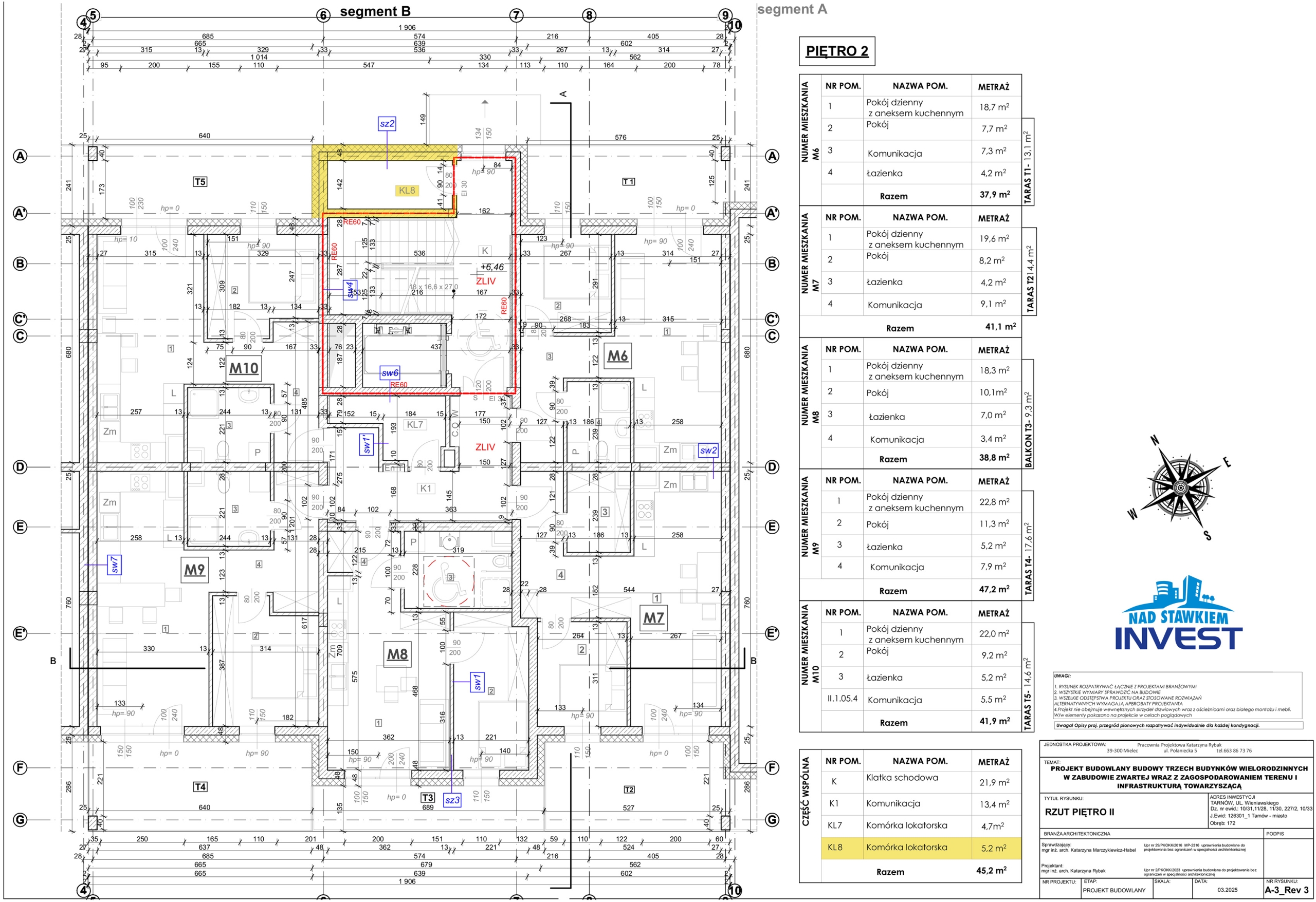
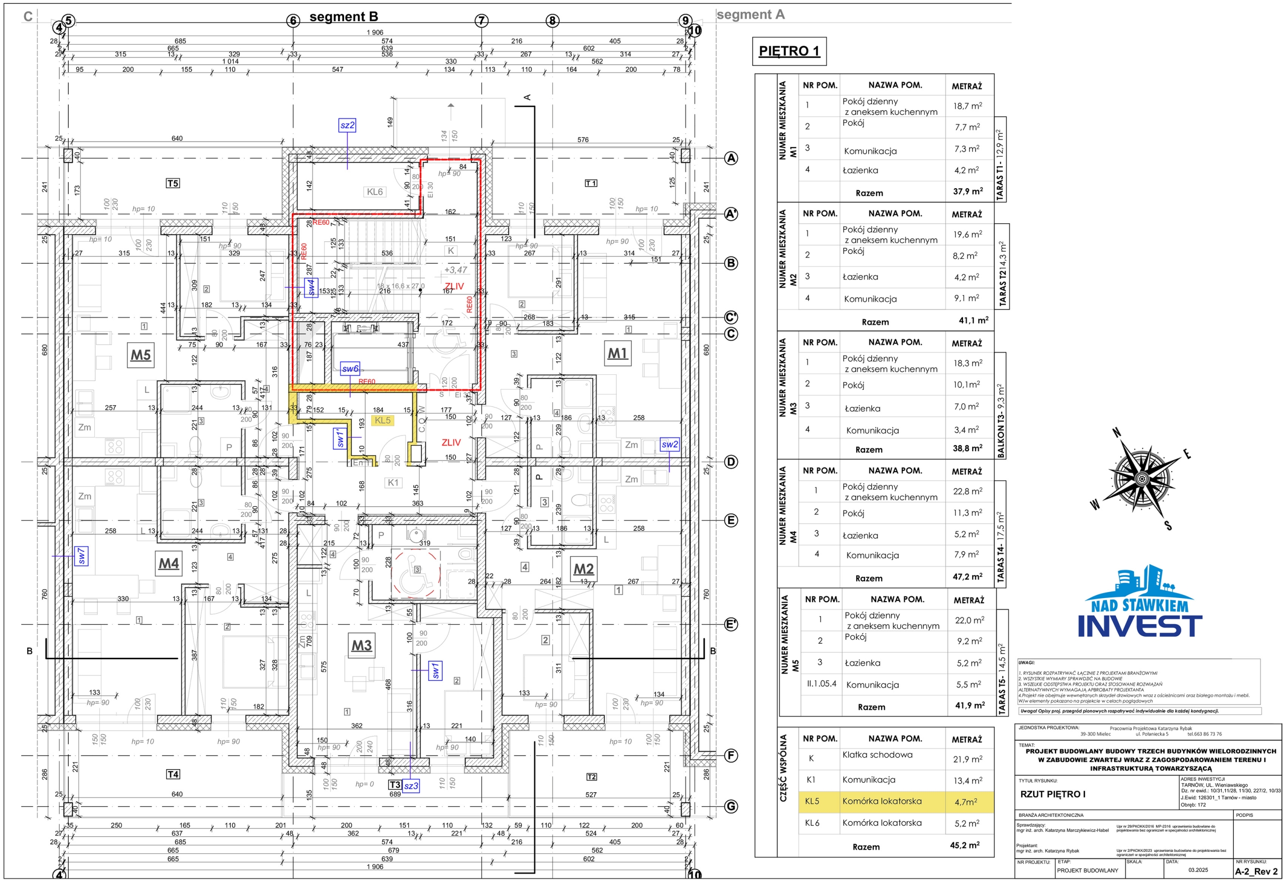
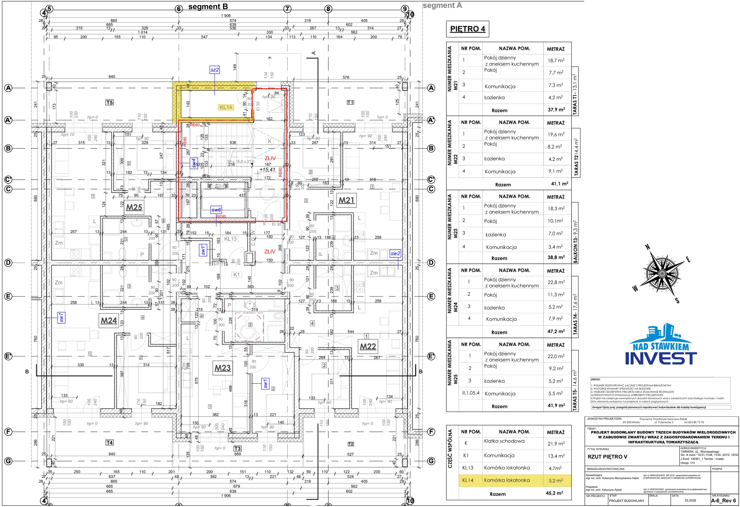
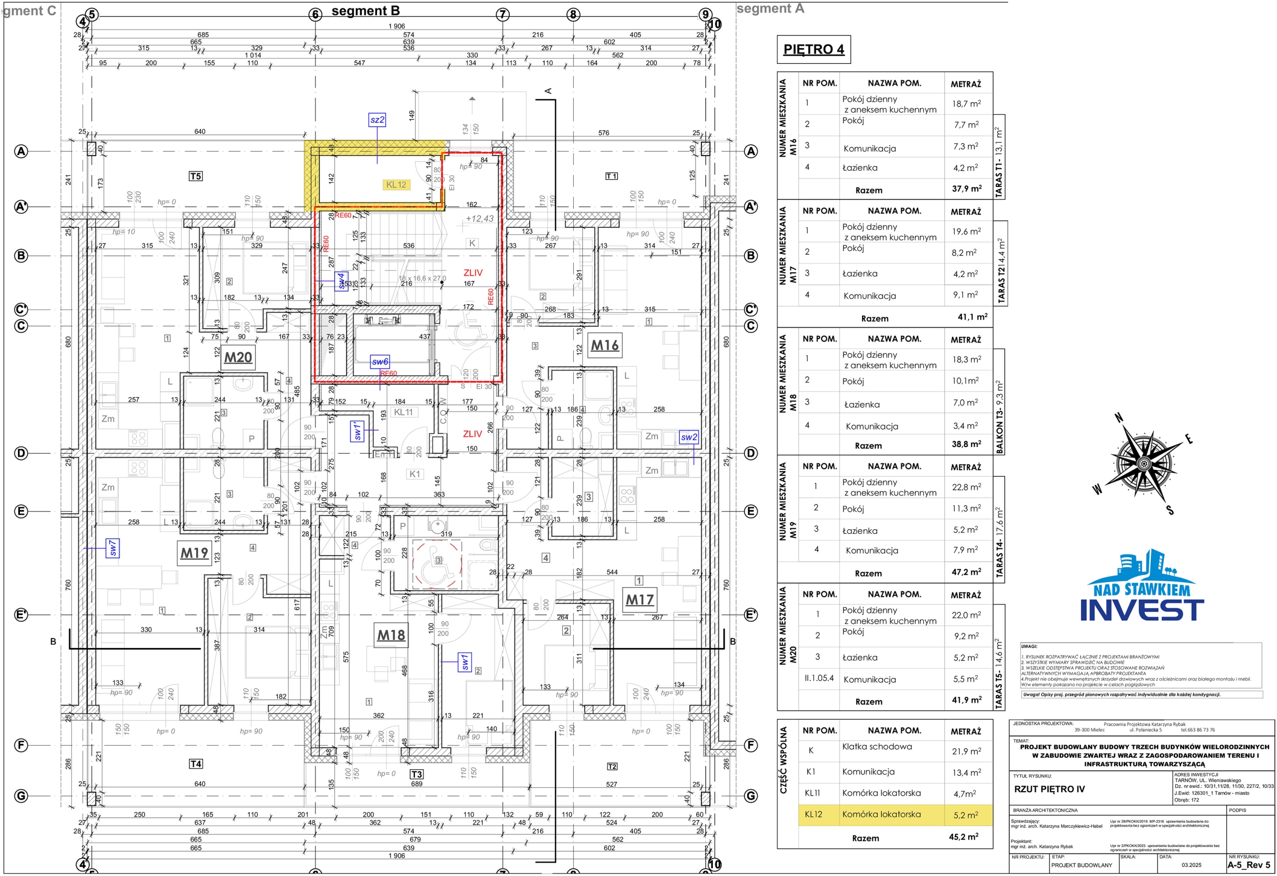
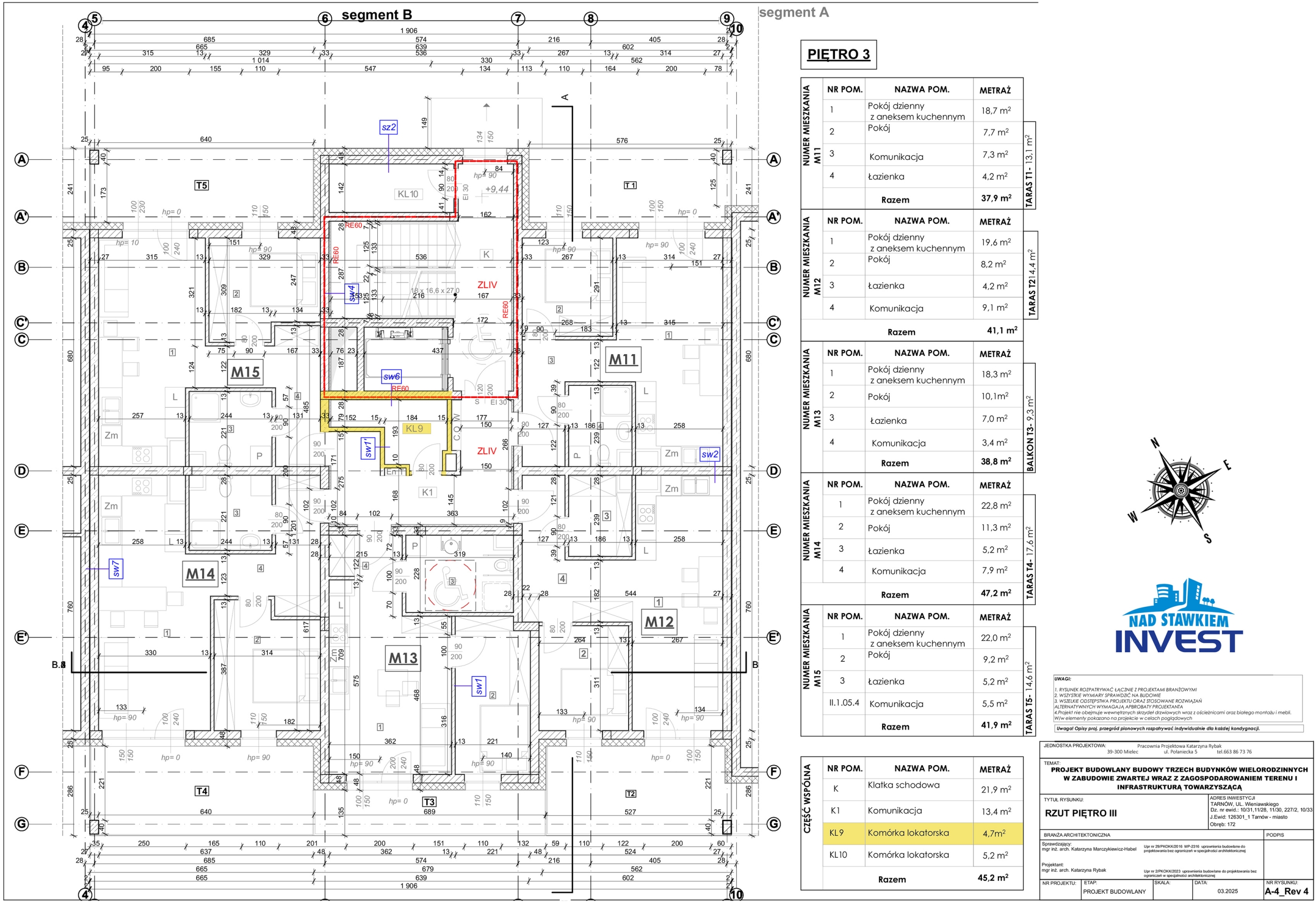
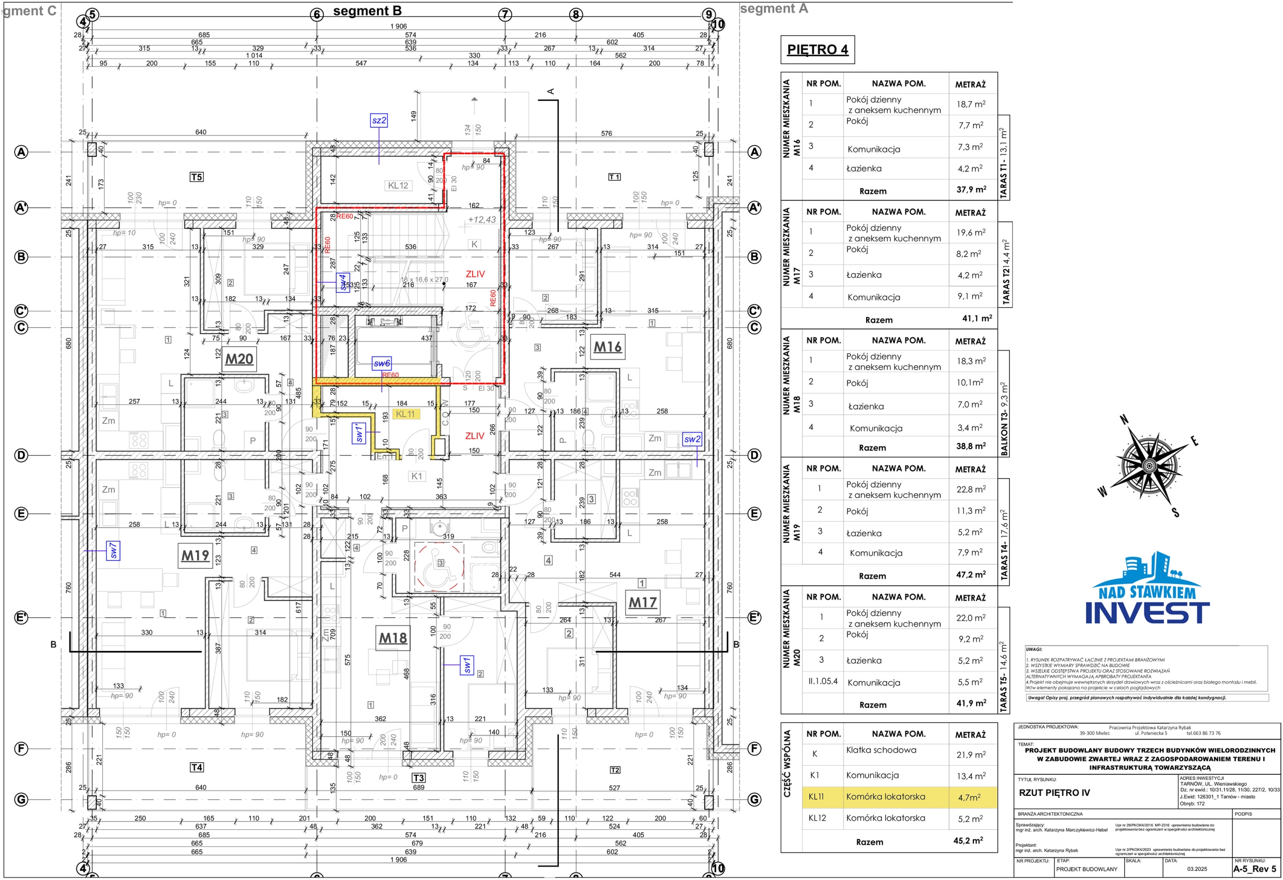
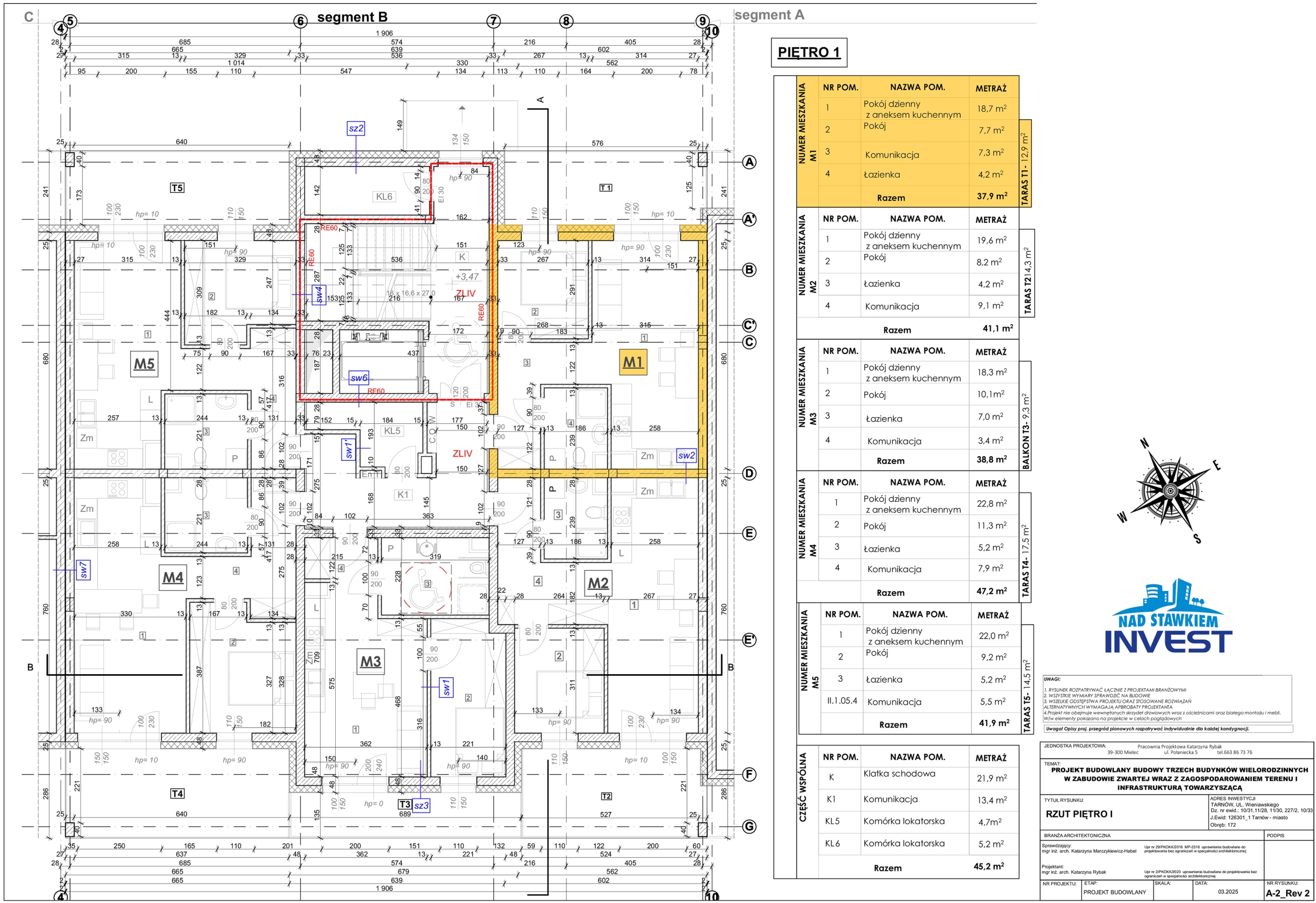
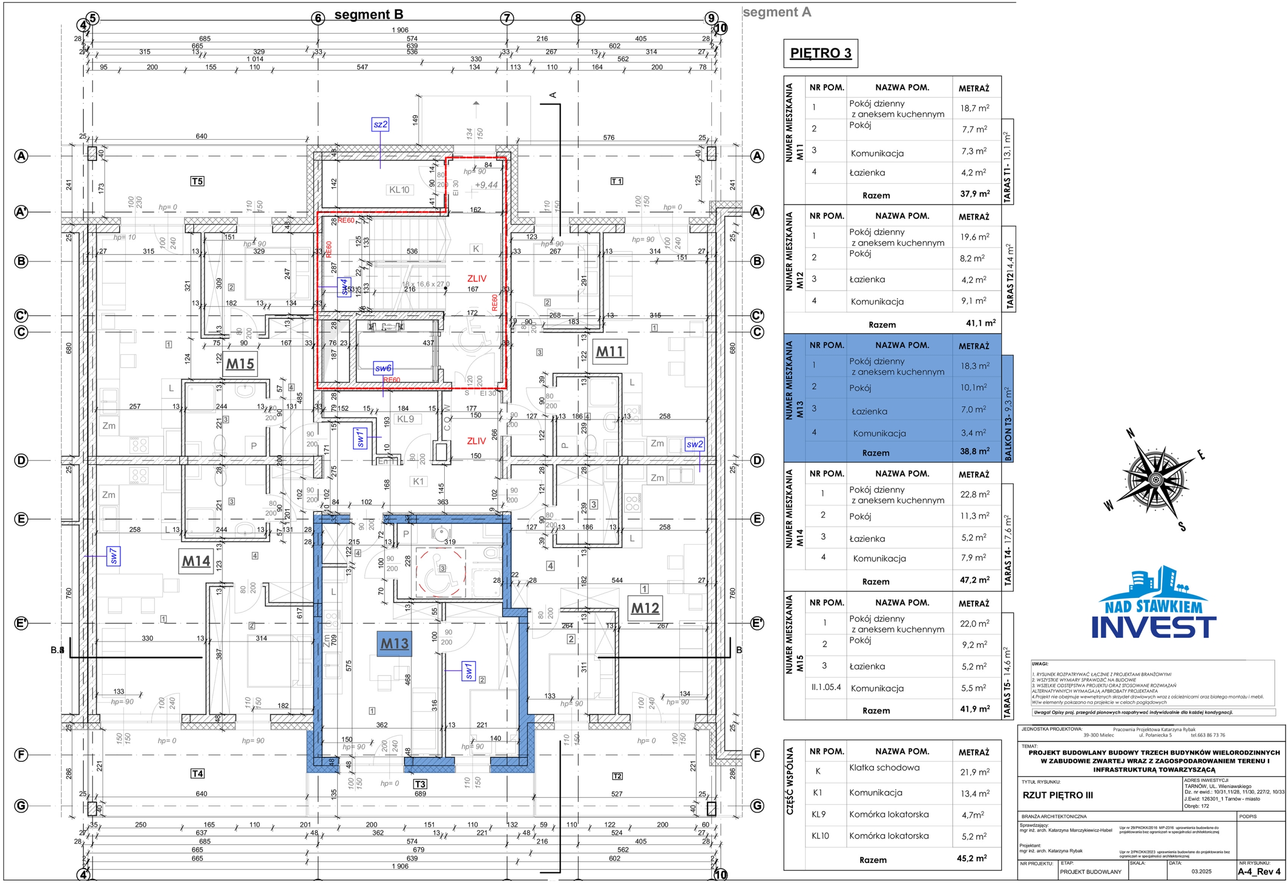
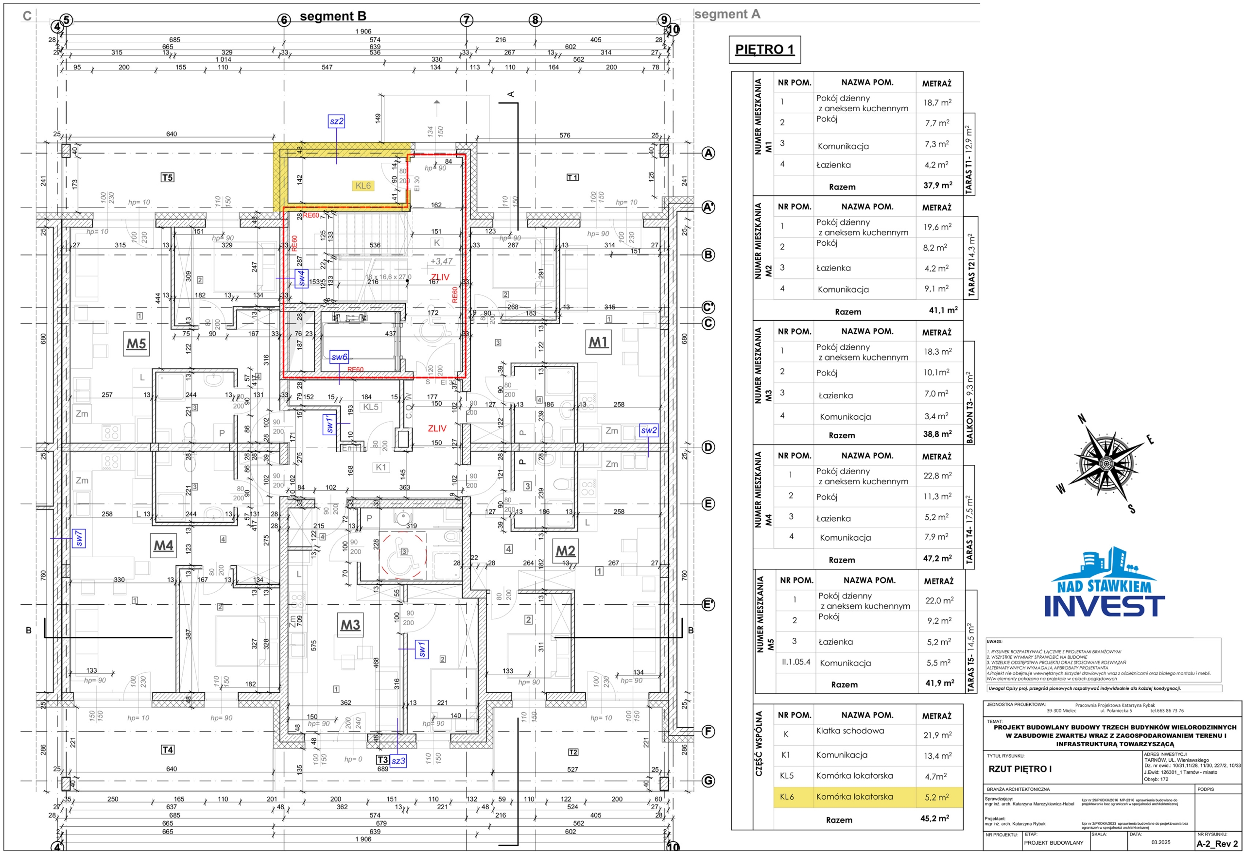
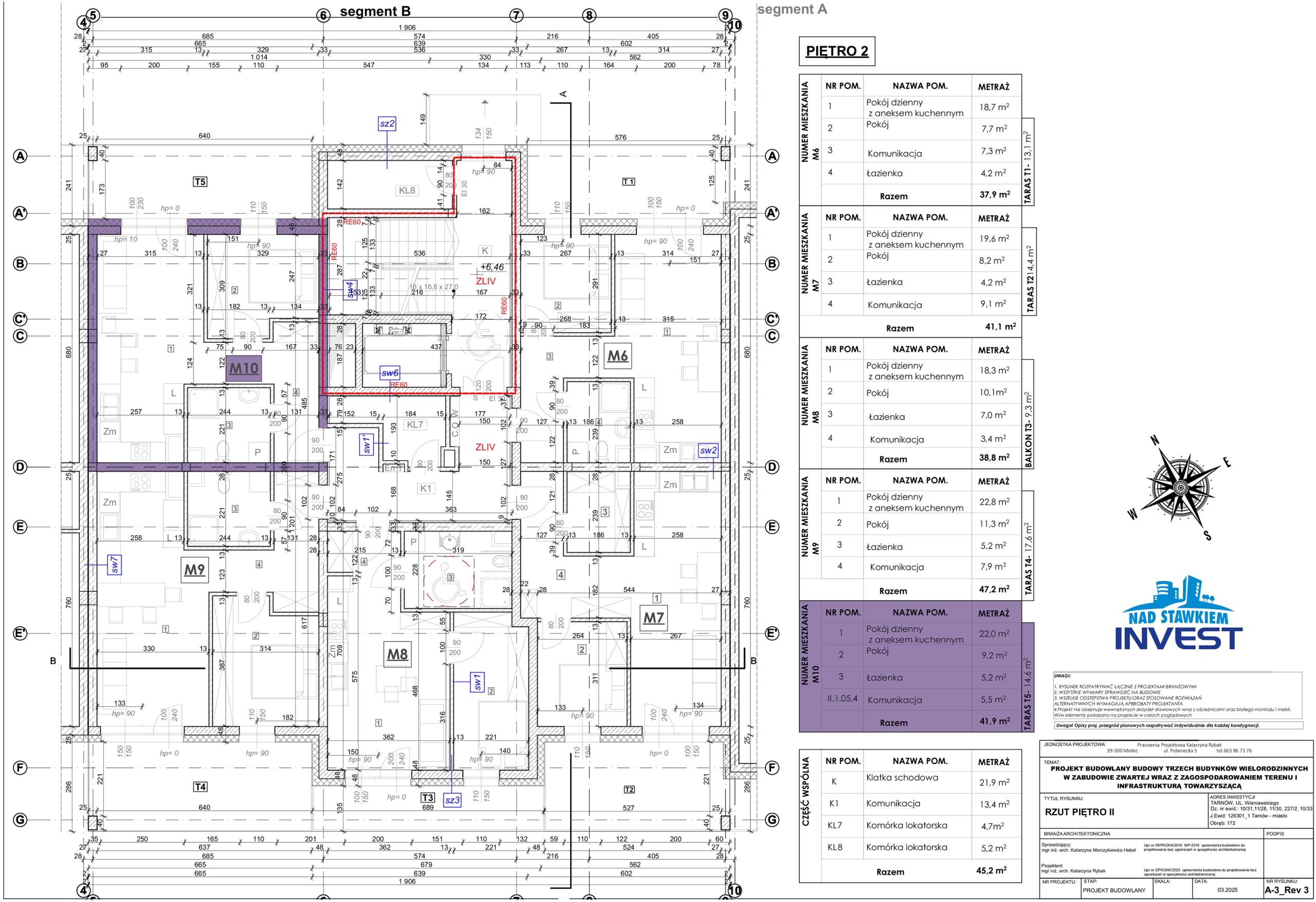
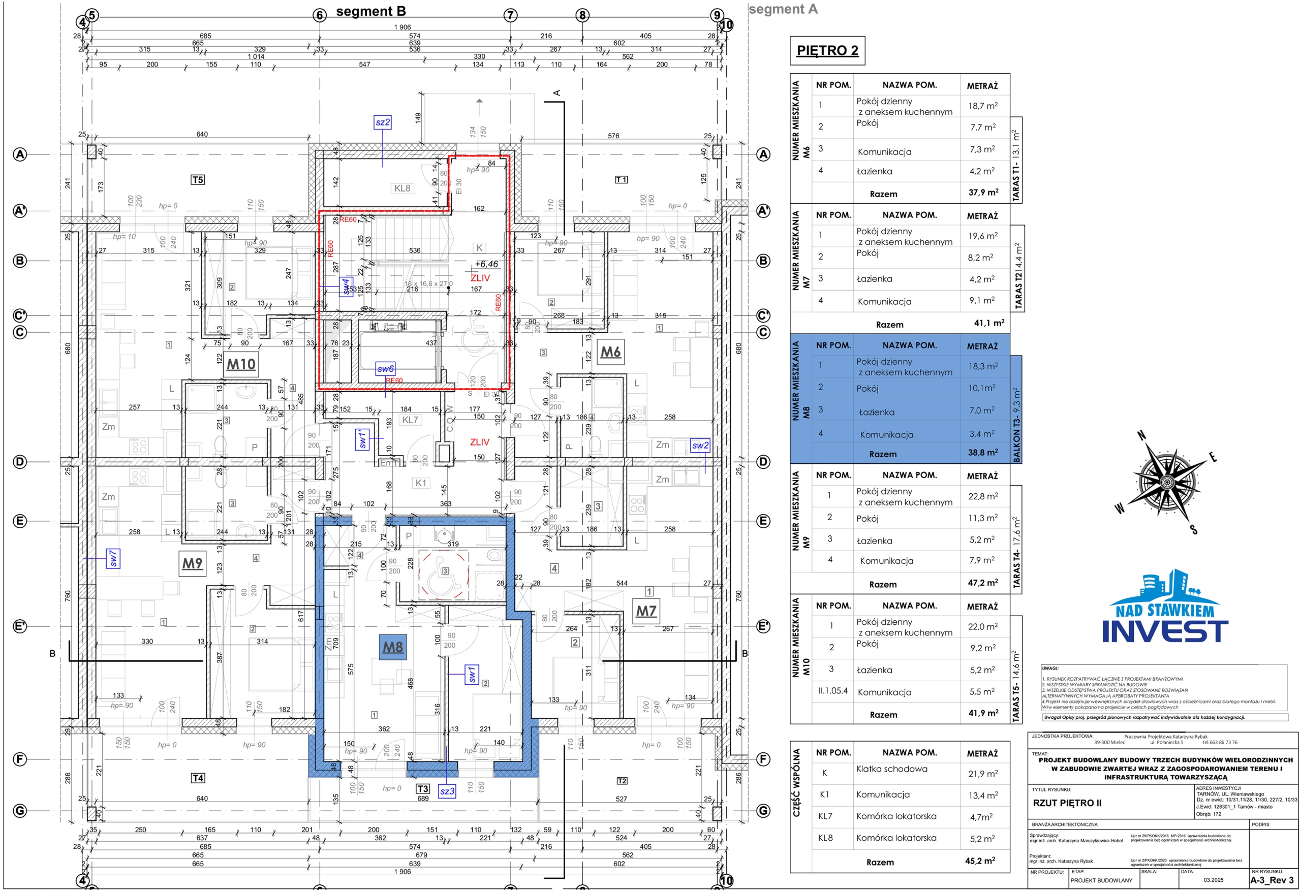
WIENIAWSKIEGO SADY segment B – to drugi etap nowoczesnego, 3-klatkowego budynku mieszkalnego. Będzie on wykonany w technologii tradycyjnej z wykorzystaniem nowoczesnych, sprawdzonych rozwiązań jak choćby instalacji fotowoltaicznej. Budynek będzie posiadał odświeżoną bryłę oraz elementy wykończeniowe zgodne z obowiązującymi w branży architektonicznej trendami. Tradycyjnie wyposażony będzie w garaże z indywidualnymi wjazdami oraz zewnętrzne miejsca parkingowe. Nowością będą natomiast komórki lokatorskie nie tylko w przyziemiu, ale także na poszczególnych piętrach. Ich ilość będzie jednak ograniczona. Wielkim atutem tego segmentu będą bardzo duże balkony, dochodzące nawet do 18m2!
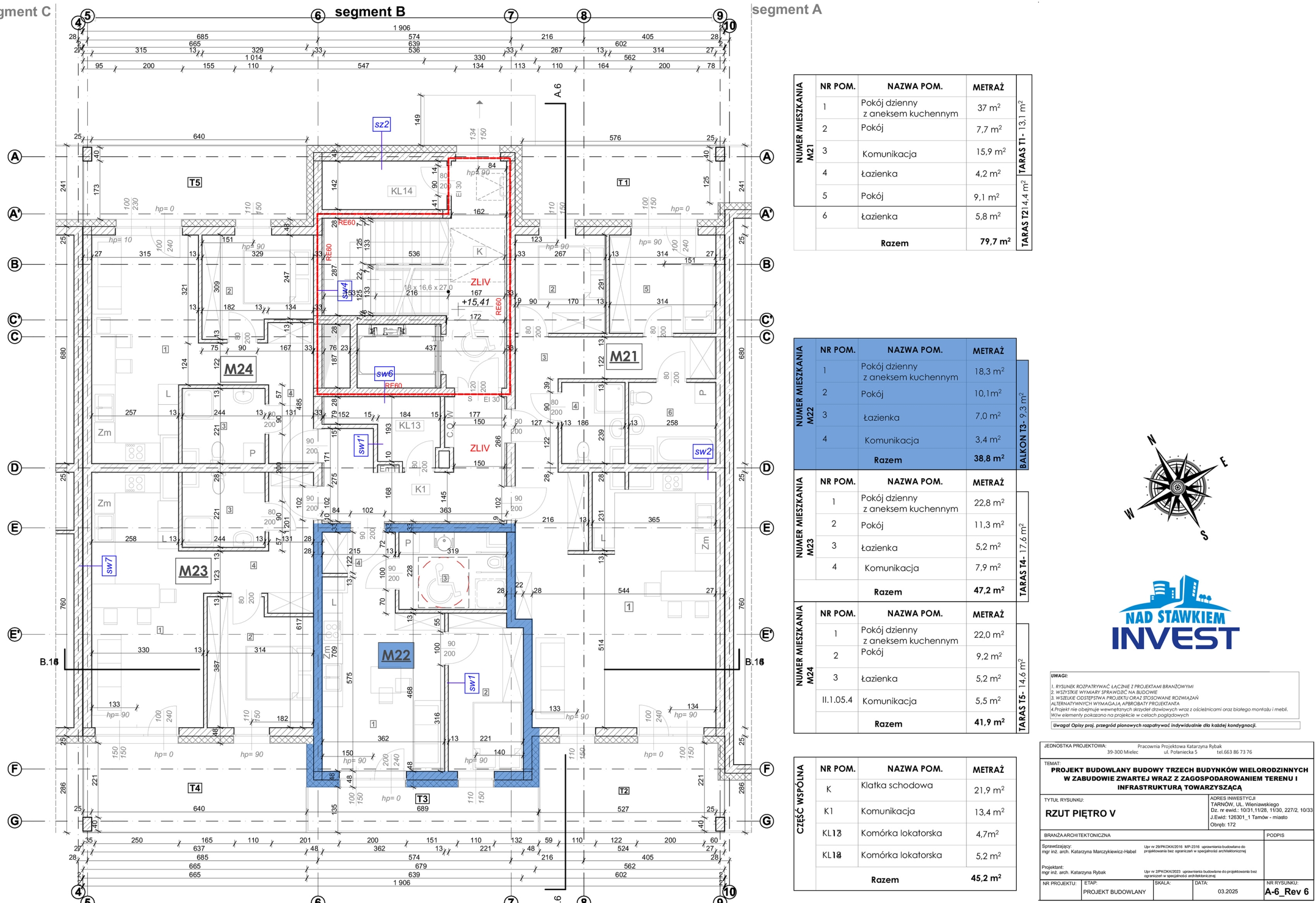
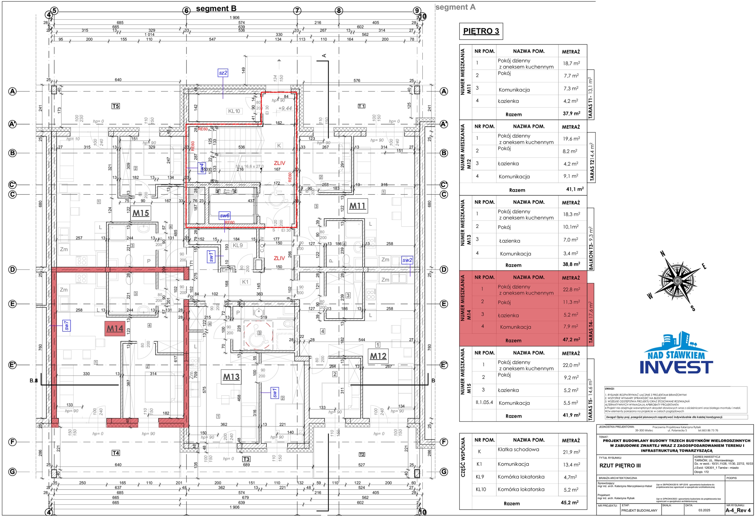
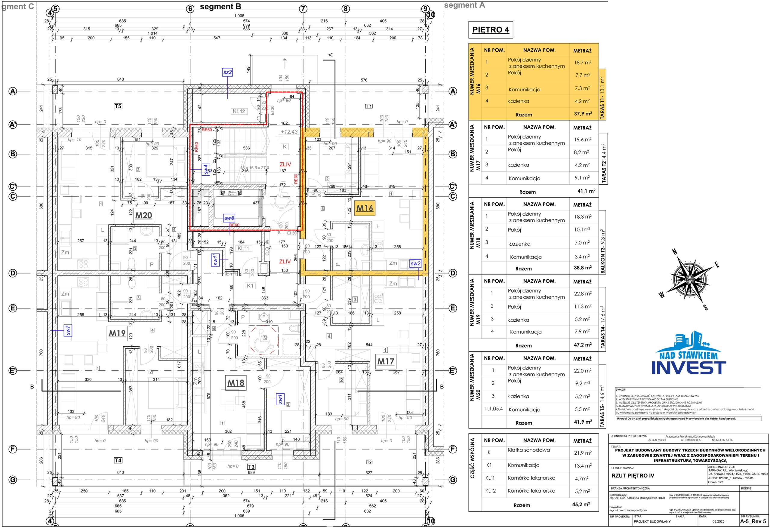
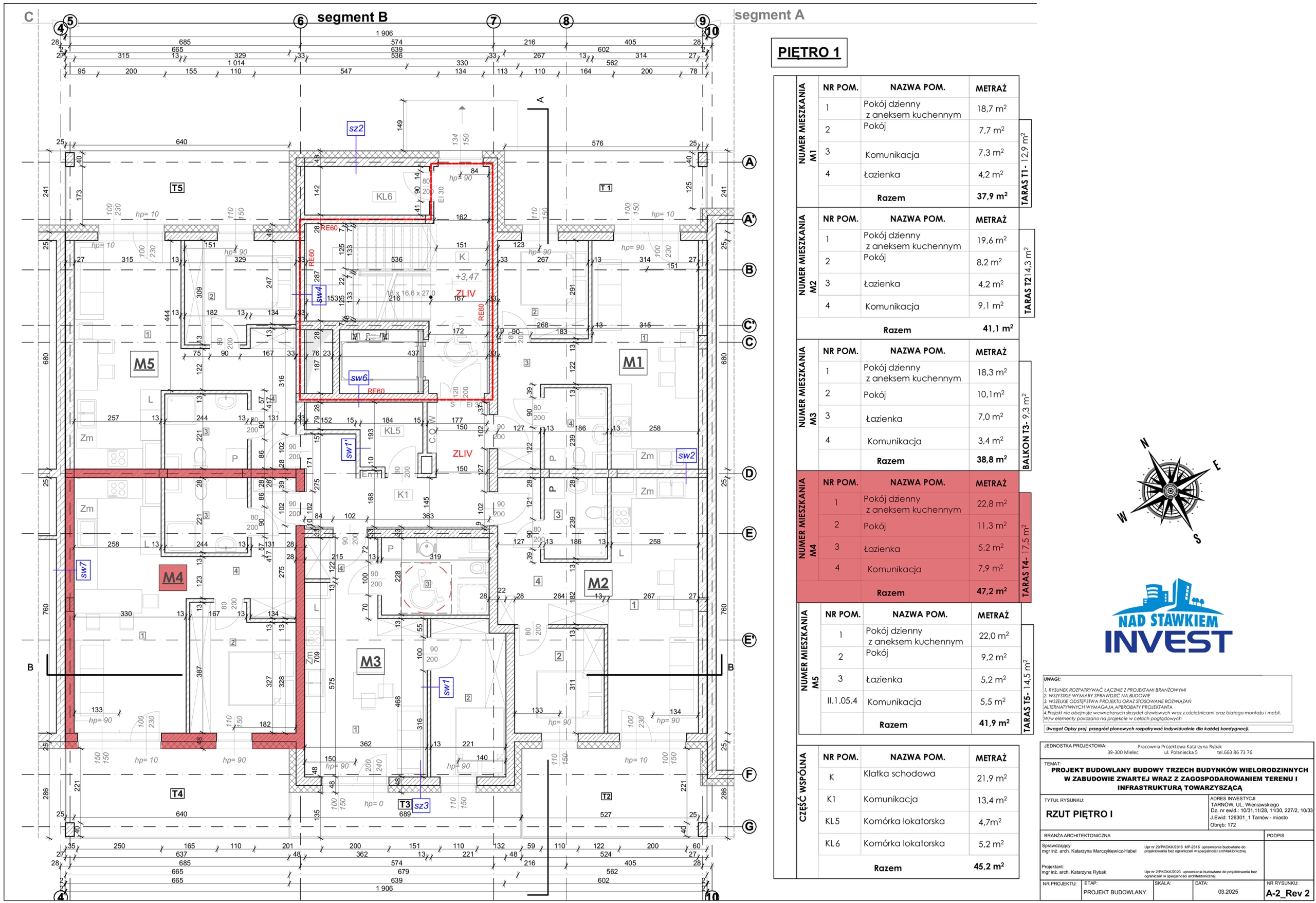
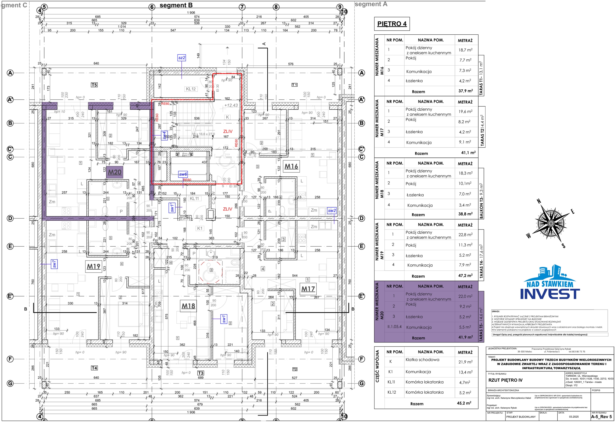
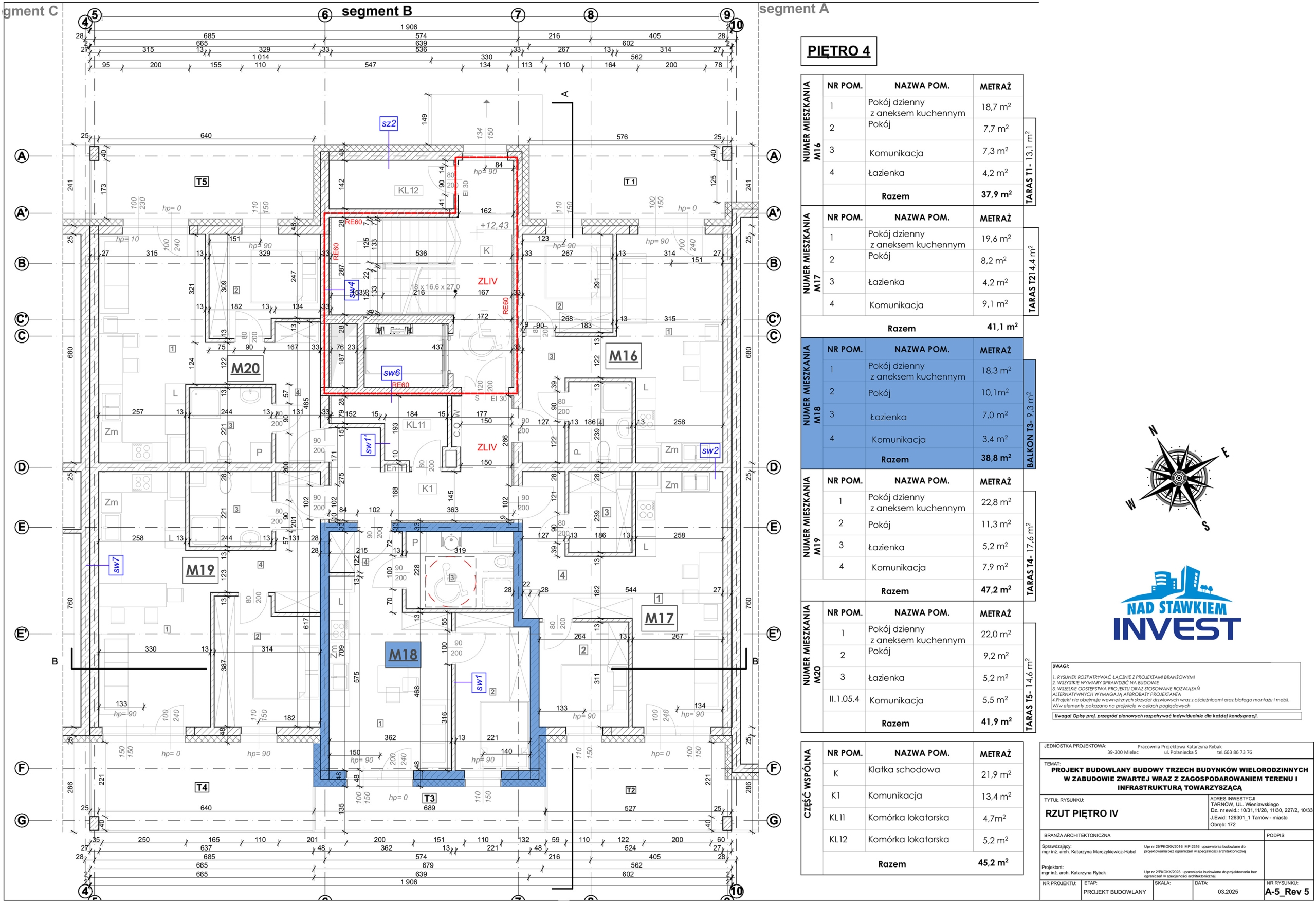
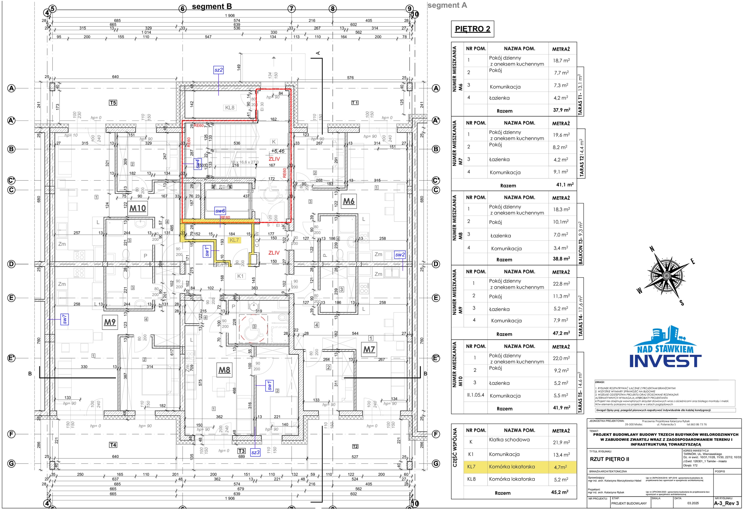
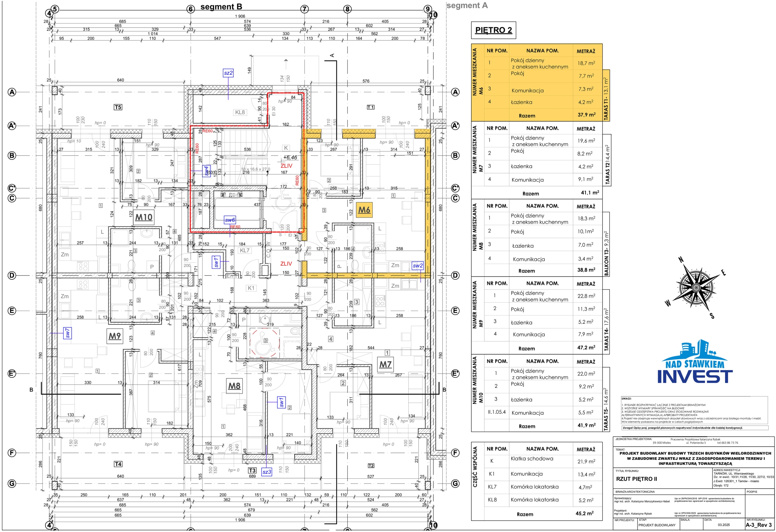
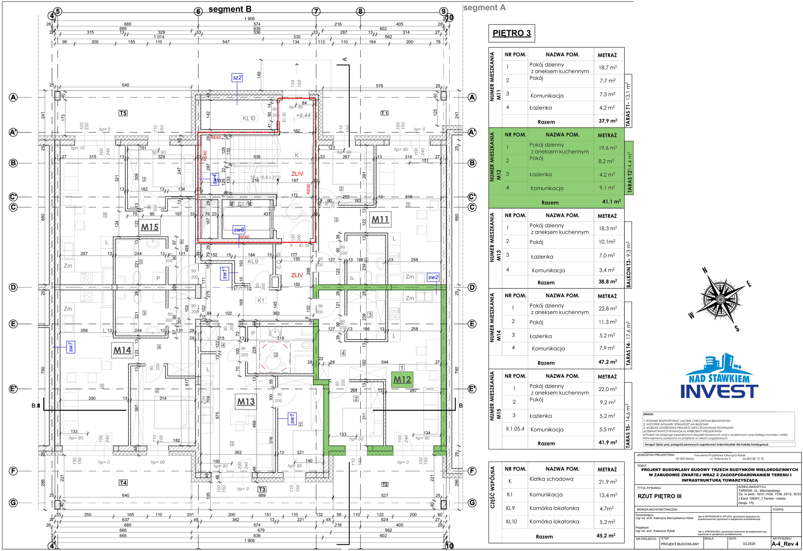
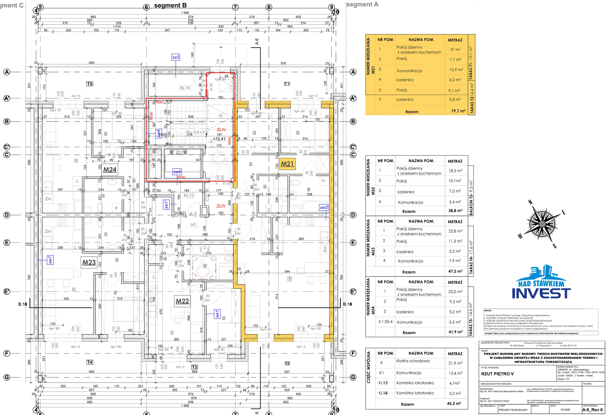
Segment B będzie składał się z 24 mieszkań w metrażu od 37,9 m2 do 79,7 m2 z możliwością łączenia lokali w celu stworzenia mieszkania o większej powierzchni. Do każdego mieszkania przynależał będzie duży balkon. Cały blok będzie składał się z 75 mieszkań. Obiekt będzie posiadał 5 kondygnacji mieszkalnych z komórkami lokatorskimi oraz jedną kondygnację z garażami i pozostałymi komórkami. Przed budynkiem zlokalizowany będzie parking z możliwością wykupu miejsca postojowego na własne użytkowanie wraz z zabezpieczeniem przed wjazdem na parking przez osoby do tego nieuprawnione.
Ponieważ nadal lokalizacyjnie pozostajemy w klikowskich sadach, to wciąż naszym sporym atutem jest połączenie cichej i spokojnej okolicy oddalonej od głównych ciągów komunikacyjnych oraz jednocześnie bliskość ścisłego centrum miasta z łatwą dostępnością do podstawowych obiektów codziennego życia: przedszkola, szkoły, sklepów, obiektów gastronomicznych oraz przystanków komunikacji miejskiej. Lokalizacja naszych mieszkań od lat jest bardzo doceniania przez naszych klientów i jesteśmy przekonani, że podobnie będzie również w przypadku inwestycji WIENIAWSKIEGO SADY
Opis techniczny
budynku
Wysoki standard wykonania
Wizualizacje
inwestycji
Dostępność mieszkań
WAŻNE: WSZYSTKIE CENY PODLEGAJĄ NEGOCJACJOM Z PRACOWNIKAMI BIURA
Wieniawskiego segment B
* zewnętrzne miejsce postojowe z prawem do wyłącznego korzystania – 17 000,00 zł/szt
